HDS101液壓式靜力水準儀
HDS101差壓液壓式靜力水準儀是基于連通器原理,通過測量若干個相互聯通的安裝于被測量點儲液罐液面高度與測量基點(不動點)液罐液面高度的相對變化,反推出各個儲液罐安裝位置相對位置沉降變化量的一種精密儀器。
HDS101差壓液壓式靜力水準儀是基于連通器原理,通過測量若干個相互聯通的安裝于被測量點儲液罐液面高度與測量基點(不動點)液罐液面高度的相對變化,反推出各個儲液罐安裝位置相對位置沉降變化量的一種精密儀器。
應用領域
軌道交通路基沉降監測
地鐵支撐墻沉降監測
隧道上部山體及建筑物
高速公路路基、邊坡沉降檢測
橋墩、基坑沉降檢測
大壩及水利樞紐、高層建筑的基礎
核電站、大型水電站
綜合管廊沉降監測
產品特點
地基沉降是一個緩慢過程,在任何較短時期,反映到儲液罐液面的變化都會非常細微,能否實時、精確地檢測到這個微小變化,反映出地基的微小沉降,做到防微杜漸,是衡量一個靜力水準儀產品好壞的關鍵,這對系統所集成液位傳感器的實時性、精密性提出了極高要求。由于是戶外安裝,液位傳感器的溫度系數、防水性、防雷擊都是關鍵技術。另外,靜力水準儀整機的安裝尺寸和易更換性也是重要的技術指標,是由一個高精度的磁致伸縮液位計,加上儲液罐、液位浮子、保護罩、調平支架、通聯氣、水管等部件組成。
主要技術參數
被測介質: 液體
壓力形式: 壓差
量 程: 0~200mmH2O, 0~1000mmH2O ,0~20mH2O (量程可定制)
溫度量程: -40~100℃
輸 出: RS485數字信號(MODBUS-RTU協議)、4~20mA
綜合精度: 0.02~0.10%FS
顯示分辯率: 0.01mmH2O
供 電: 12V Dc(7~30VDC,極限5VDC)
絕緣電阻: ≥1000 MΩ/100VDC
補償溫度: -20~60℃(特殊溫區訂貨時注明,可定制補償-30℃)
介質溫度: -40~85℃
環境溫度: -40~80℃
儲存溫度: -40~85℃(相對濕度 0~95% RH)
密封等級: IP67/(可定制IP68)
過載能力: 150%FS
響應時間: ≤5mS
穩 定 性: ≤±0.03%FS/年
振動影響: ≤±0.15%FS/年(機械振動頻率20Hz~1000Hz)
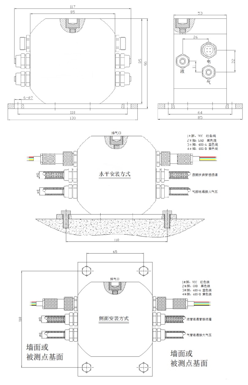
電氣連接: 四芯防水航空接插件
連接材料: 航空鋁合金,氧化
過程連接: Ф10mmPU液管、Ф8mmPU氣管,特殊可定制
尺寸及安裝示意圖

多點監測安裝示意圖

靜力水準儀現場安裝圖

聯系電話
微信掃一掃
